核電站電氣貫穿件專用壓力表組件
核電站電氣貫穿件專用壓力表組件是屬于核電站電氣貫穿件專用檢測裝置,其特點是:在核電站安全殼內部能完全使用,必須要求它耐輻照、耐高 溫等惡劣工作環境。
1.貫穿件及壓力表組件介紹
電氣貫穿件是核安全電氣一級設備,是安裝在核電廠安全殼上,用于 電纜穿越安全殼的核電專用電氣設備,對核電站反應堆的安全運行至關重 要。電氣貫穿件可以在正常情況下,以及包括地震和失水等事故條件下, 維持反應堆安全殼的完整性和電氣連續性,防止放射性物質外泄,是核電 站安全穩定運行的重要保障之一。
核電站電氣貫穿件專用壓力表組件(以下簡稱“壓力表組件”)是安 裝在貫穿件的筒體上,主要用于監測貫穿件內氦氣的泄露量,并方便工作 人員直接讀數、目測。
2.新舊壓力表組件的比較
2.1傳統的壓力表組件
從國內和國外的核電站看,傳統的壓力表組件通常有一個壓力表、一 個三通的閥和一個開關組成。如圖1:
如圖所示,可見:當電氣貫穿件內充滿氣體,閥門擰緊,用壓力表監 測它的氣體泄漏率,但由于該壓力表組件的接口較多,多處采用螺紋連接 等來實現密封,核電站的要求是高密封性能,對于如此多的接口很難保證 它的密封性能,無法準確測出它的泄漏率,存在一定的誤差,因而不能滿 足核電站的要求,不能被廣泛的采用。
2.2新型的壓力表組件
對于此不足,設計了一個新型壓力表組件,能減少組件的接口,有效 的保證壓力表組件的高密封性能,外形如圖2。
如圖可見:當電氣貫穿件內充滿氣體,閥門擰緊,用壓力表監測它的 氣體泄漏率。該壓力表接口比較少,僅有一處是和連接管法蘭連接的,其 余的都用焊接處理,不僅表面看起來更美觀、簡潔和光滑,而且能更好的 實現密封性能,能準確的測出它的泄漏率,更能符合核電站的要求。
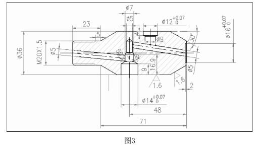
3.技術難點
斜孔和斜面的加工工藝:為了使閥體看上去更美觀,更小巧、就簡 潔,所以是閥體盡可能的縮小長度。所以采用在閥體內打斜孔以減少長 度。如圖3:
斜孔的加工工藝
在實際的工廠加工中,先將閥體固定在機床上,把工件放準,盡量一 次安裝,使需要加工的孔的軸線與設備主軸軸線重合,端面垂直然后沿垂 直面鉆出一個小坑,不要太深,只要能在所要加工的角度上有一個近似的 小垂直面就行,這樣的目的是為了等會加工斜孔準確定位,然后再按角度 鉆孔,左側孔是5°,右側孔是9°。因為斜孔較難加工,所以,盡量減少 閥體的長度,使孔的深度減少,而且,用銑刀加工的話,進給慢,不然銑 刀會斷裂。
斜孔加工一般不在鉆床上做的,因為鉆床的主軸一般都縮不死,會有 晃動,加工時會跑偏的,通常在銑床或鏜床上加工比較合適。大批量產品 就要設計專用工裝和專用設備。
斜面的加工工藝
從實現斜面加工的角度看,在一次裝夾中可完成不同方向、不同角度 的多個斜面的打孔、鏜孔、攻絲、銑削等加工的需要。減少了裝夾次數, 降低勞動強度,縮短了產品的生產周期,更重要的是提高了零件的加工精 度,保證了產品質量的一致性。
如果可能的話,用分度頭夾好,把分度頭旋轉相對應的角度,就可以 在銑床上加工了。
另外如果工件尺寸夠大,主軸能伸到工件里,可以使用分度刀柄,銑 刀加工。還有一種方法:
將加工槽的底面與機床刀具運動平面平行裝夾即可,根據工件大小可 以使用插床、刨床、線切割加工,加工時首先將圖示工件的邊線(錐臺的 母線)與機床刀具運動方向平行,如使用分度頭或專用斜面等裝夾即可。
斜面密封
采用斜面實現密封,比以往的單向閥采用球體和斜面配合實現密封, 更有效,以往的單向閥是線接觸。而這個設計是采用斜面與斜面配合,是面接觸,增大了接觸面,提高了密封性能。
4.閥芯的密封及材料選擇
4.1閥芯的密封裝置的設計
閥芯的密封的要求,不僅是靠一段螺紋,還需要更好的密封的裝置。 如圖5和圖6。
由圖可見,兩個密封圈配合套在閥芯上時,當閥芯往里塞、擰緊的時 候,由于密封套的彈力夠好,在兩個密封套受到擠壓的時候,緊緊貼合到 一起,相互擠壓。密封套內受到壓力向內圈擠壓,和閥芯相貼合,實現密 封;密封套外受到壓力向外擠壓,和閥體貼合,從而實現密封。
這種密封裝置比密封圈更密封性能更好,更能貼合閥體和閥芯 表面,能滿足核電站的高密封的要求。
4.2密封裝置材料的選擇
材料的選擇的很重要,對于核電站的要求更為重要,核電站的要求材 料:耐輻射、耐高溫、耐輻射等。在如此惡劣的環境下能正常工作,就必 須要求材料的高性能。因此,選擇的是PEEK聚合物材料。
英國威克斯公司是PEEK聚合物的唯一制造商,該聚合物是目前可用的 熱塑性材料中的性能最佳。因而適用核電站。該聚合物又稱聚醚醚酮, PEEK是聚醚醚酮根據IS01043標準的縮寫,其重復單元由氧-1,4-亞苯基- 1,4-亞苯基-碳酰基-1,4-亞苯基組成,與其他特種工程材料塑料比具有 諸多顯著優勢,在航空航天,汽車制造、電子電氣、醫療和食品加工等領 域得到廣泛的應用。
4.2.1其主要物理性能
高溫性能:PEEK聚合物的熱變形的溫度高達315C,且連續使用溫 度為260 "C。
耐磨損性能:PEEK聚合物具有優良的耐摩檫和耐磨損性能。
耐化學腐蝕性能:PEEK聚合物在大多數化學環境具有極佳的耐腐 蝕性,即使在溫度升高的情況的下也一樣。在一般情況下,唯一能夠溶解 PEEK聚合物的是濃硫酸。
防火、輕煙和無毒性:PEEK聚合物非常穩定,此材料的成分和固 有的純度使其在火災環境只會產生極少量的煙霧和毒氣。
耐水解性:PPEK聚合物可以抵御水或高壓蒸汽的化學侵蝕。這些 材料制成的組件在高溫和高壓下在水中連續使用仍可保持高水平的機械性
電氣性能:PEEK聚合物可在寬泛的頻率和溫度范圍內保持良好的 電氣性能。
高純度:PEEK聚合物固有高純度。僅有極少量的浸出離子及釋出
氣體。
4.2.2 其主要的機械性能
拉伸性能:PEEK聚合物的拉伸性能優于大多數的工程熱塑性塑 料,該聚合物具有黏彈性,該聚合物適用于制造耐高溫或在高溫下連續使 用的組件。
彎曲性能:在寬泛的溫度范圍內,因為具有黏彈性,具有卓越的 彎曲性能。
蠕變性能:蠕變可定義為在持續應力作用下,樣品隨時間的變形 情況,以工程熱塑性材料而言,該聚合物具有出色的抗蠕變性能,并且可 以在使用期內承受極大的應力,而不會隨時間而產生明顯的延伸。
蠕變斷裂:在恒定應力作用下,熱塑材料的性能也可以有蠕變斷 裂來判斷,蠕變斷裂表示在一定的時間內,材料損壞前可以承受的最大負 荷,其中,材料損壞的定義是脆斷或頸狀變形。
綜合上訴種種特性,可以見的,PEEK適合做這個壓力表組件閥芯的密 封裝置,能夠耐輻射、耐高溫、耐腐蝕,符合核電站的高要求。
上一篇:淺談壓力表的使用、維修及檢定


